Initial Consultation
Our initial consultation is done largely online, by email; working Canada-wide we have found this to be the most efficient method, allowing us to quickly and accurately determine the correct shade solution for your space. The discussion starts with what you are looking to achieve. Through the use of photos sent to TensArch, we are able to form an initial assessment of the area you are trying to cover and determine the best type of structure for you.
The next phase of the consultation is a discussion of budget and initial renderings are then created to show possible shape options based on the information you have supplied.
Design and Detailed Rendering
Once we have established the type of structure and the general shade you are happy with, the fabric structure is then intricately designed and the customer is provided the opportunity to give feedback on specifics like post height, distance etc… Once this rendering process is completed you will have an excellent visual representation of your fabric structure and you will be provided with a quote for your project.

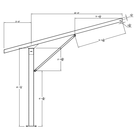
Site Visit & Engineering of Support Structure
Once the budget is accepted and you are happy with the rendering, depending on the size of the project, a site visit is undertaken to determine spans and post measurements. These post placements are then reviewed with you before being sent to the engineer who determines the post and footing size for the specific location based on the spans, local wind ratings and weather conditions. Once the engineer has produced the drawing, this is the basis for construction moving forward.

Steel Fabrication and Post Placement
Once our engineered drawings are finalised, we then begin the fabrication of our support structures. Working closely with local businesses, we source the materials in the closest centre to your site, reducing the cost and our impact on the environment.
Once the fabrication is complete, the posts and footings are then installed and measurements are then taken for the Shade Sails. This is a very detailed process and must be done after the posts are in place to ensure the highest levels of quality.

Fabrication & Flying of the Shade Sail
Once we have the specific measurements for the footing and post measurements, we then fabricate the sails in our office. Each sail is custom-made, hand-cut and sewn right here in Canada.
This process usually takes between 2 weeks to 1 month and after the sails are fabricated we then return to the site to fly the fabric.

Warranty and Ongoing Support
Our service is far from over after the installation of your fabric structure. We are very accessible and offer a “Fly and Drop” service year-round. This offers our clients piece of mind, ensuring all sails are correctly flown in the spring and removed and packed properly for winter storage. This also allows us to inspect of all your hardware and guarantees your warranty.













